Applications
Remote
Dormitories
Homes
Hotels
Schools
Urban
Products
& Services
How It Works
Financing
Contact-Us
SHARE THIS
REMOTE
APPLICATION
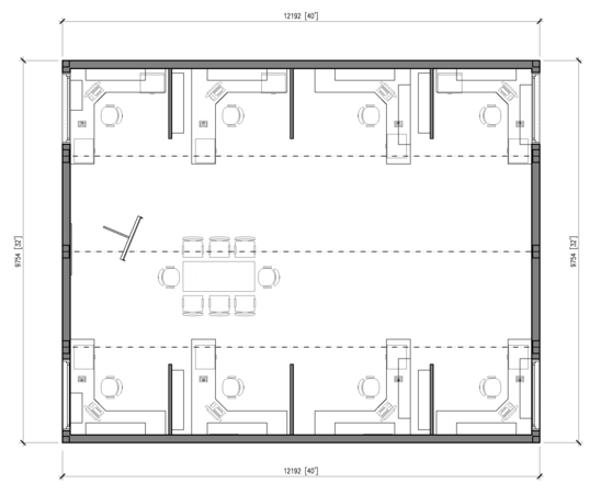
PORTABLE OFFICE
FOUR MODULES